Titanic Orchestra

Macalester College

Scenic Designer & Scenic Charge

2023

Scenic Painting

Photos by: Yunzhu (Jessica) Chen

Production Team

Director:

Dramaturg & Music Director:

Scenic Designer:

Lighting Designer & Technical Director:

Assistant Lighting Designer:

Costume Designer:

Sound Designer:

Props Designer:

Barbra Berlovitz

Ben Desbois

Yunzhu (Jessica) Chen

Tom Barrett

Emelia Brinkley

Yuheng (Kitty) Jiang

Lizzie Nelson

James Calhoun

Initial Concept

In the initial meeting with the director, she asked to lose the political background of the original script. She described that she wanted a space that represents no particular place in the world or time.

The initial concept I presented (on the left) has flat painted surfaces rigged from the grid representing paintings in frames. The concept took inspiration from Dali and paintings from other Surrealist artists to explore the themes of dream, subconscious, and escapism in the show.

After further conversations, the director wanted the stage to be more realistic, so this concept ultimately morphed into the version below.

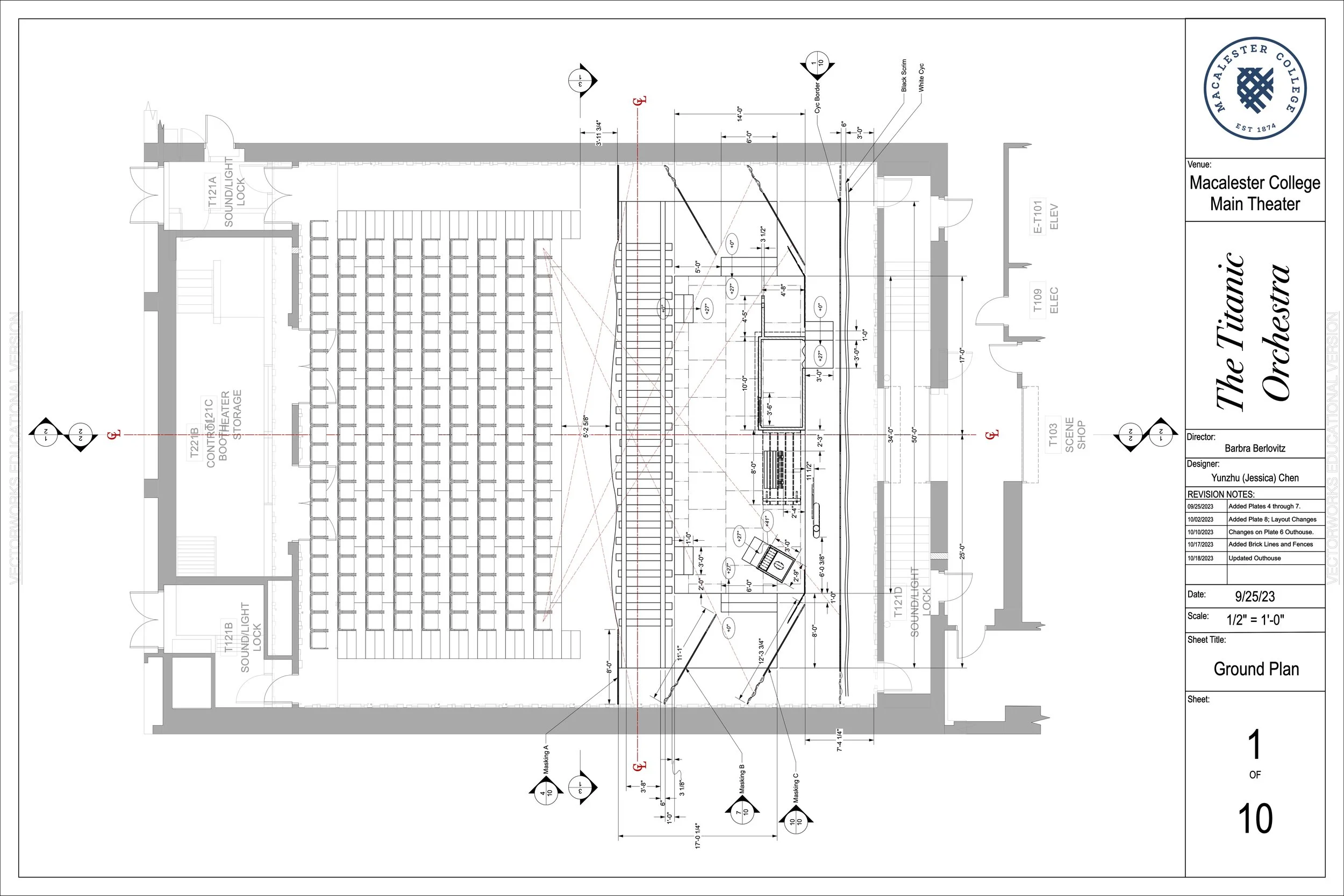
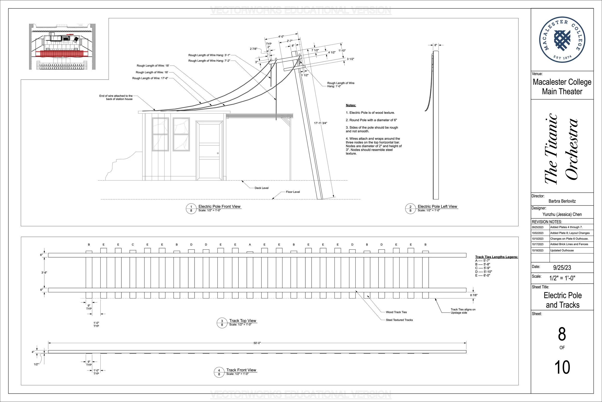
Drafting Package

Scale Model and Renderings

Aged & Worn

The set is designed to evoke a rundown, forgotten world, emphasizing a sense of dereliction and neglect through the following elements:

Weathered Brickwork & Wood

The structures are intentionally aged, featuring uneven coloring, chipped surfaces, and visible wear that suggest years of exposure to the elements.

Muted & Dirty Color Palette

A desaturated, earthy palette of browns, grays, and dull yellows reinforces the sense of decay.

Uneven, Yet Patched-Together

The rough, haphazard construction—seen in slanted fences, broken furniture, and peeling posters—conveys a space that has been repurposed or left in disrepair.

Set Dressing

The train station needs to feel lived in and aged by the five occupants. The stations are decorated with posters, train schedules, and luggage to create such atmosphere.

I worked with the props designer to pull and source period-fitting garbage and luggage. These stationary props as well as hand props are then placed around the set to give it more life while not blocking any performing spaces.